01.
共享農莊:紅果樹+小酒館改造記
對於在北京生活的人而言,驅車北上,只需一個多小時,眼前的畫面便能從林立的高樓一路“綠化”,山野的氣息一路鋪陳開來,遠山愈來愈“近在眼前”。
在燕山腳下,密雲區的張家莊村,一座隨著城市發展而日益“空心化”的村莊迎來了它的復興。
▼張家莊村總軸測圖
場地原始的村落風貌和建築形式保留得相對完整,村民的生活節奏在現代文化的襯托下顯得步履悠閒。這種狀態為當下心懷“禮失求諸野”願景、渴望擁抱《瓦爾登湖》式自然棲居氛圍的繁忙都市人提供了可想可唸的空間。
對建築師來說,城市與自然多樣發展的可能性難以尋覓,而原生態的鄉野則是一片充滿希望的沃土,這足以重組人、建築與自然的關係,並將傳統與當下的在地文化進行內化賦形,使其變為可觀、可感的形體與符號,滲透到生活中去。
張家莊村中兩處最小的宅基地(每處佔地二分半,約166平方米)成為了“空間進化”的建築師的試驗田,以居住和經營兩種業態融入村落的復興之潮。兩個小院間隔50米左右,各自成章又彼此呼應,形成吸引和示範效應,為實現以點帶面的村落空間整體進化開啟新的可能。
居住模式:共享農莊紅果樹
專案定位是城市近郊鄉村民宿,這座建築需要為久居城市的人提供一種完全不同的生活型態,同時需要滿足當代生活的功能訴求。宏觀而言,這種對鄉村文化的保留與尊重和新經營模式的置入正在引領一種文化與經濟結構的轉變,塑造一種獨屬於東方的生活時尚。
於是,建築師在對原有農舍進行改造更新時,充分尊重了鄉村環境賦予的場所精神,保留了原有院落圍合的空間禮序及建築的外觀肌理。院中,一棵“二十多歲”的紅果樹(當地人將一種果實很大的山楂稱為“紅果”,並認為“紅果”不是山楂)被悉心保留,圍樹而坐的場景喚醒了人們對自然、對故土的記憶,共享農莊的這處院落亦以之為名喚作“紅果樹”。
甫一進入村莊,跟隨夾道綠樹的指引便能看到山腳下的小院,遠遠望去建築物並不顯山露水,謙遜地陪伴著臨近農舍。
設影壁以“擋煞”、“聚氣”的中國傳統院落的佈局秩序在這座共享農莊中得以復原,而影壁的存在既有記憶載體的屬性,又為入口處增加了一層序列,使外部的行人對院中所藏充滿想象。
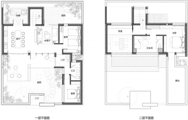
建築設為上下兩層,首層分配給了公共空間與客房,二層則是完整的主臥空間,擁有一間茶室和一個大面積的室外露臺,這為相對私密的空間置入了親近自然的生活情致。
▼“紅果樹”立面圖
原建築為木結構屋架,低矮破舊、保溫不佳。為了改善環境劣勢、滿足居住所需,建築師拆除了屋頂和一部分牆體,以混凝土來搭建了新的骨架。由於有嚴格的預算要求,拆除後的瓦、木椽、木屋架都得到了再次利用。
為了實現庭院視覺的穿透性和連貫性,建築師以大面積玻璃作為首層南北立面的主要材料,置身室內,可觀春華秋實、晨昏霧靄,聽雨打石板地的清脆聲響,讓自然風光成為生活風景。
而這種開放又與院外相隔,充分保障了居住空間的私密性,這也是對傳統民居內向性審美的一種延續。
為保障戶外活動無懼陰雨和暴曬,建築在南向設定了玻璃雨棚,並以木格柵形成光線的過濾。同時,灰空間的留存是對傳統建築形制“風雨連廊”的追憶,兼具功能和情感價值。
而在室內,建築師用白色為主調,原木和水泥等室外材料延伸進來,整體景緻與庭院相得益彰。
傢俱、擺件,每一處細節都保留著材質的原始紋理和質感,更藏有手工藝精雕細琢的細膩與溫度,呈現出一種精緻而不失野趣的生活容器。
經營模式:小酒館
在張家莊村,全村沒有一家飯店,想要用餐只能到3公里以外的另一個村。“小酒館”是基於餐飲需求而誕生的經營形態。同樣尊重場地文脈肌理,同樣是二分半宅基地的面積,同樣是舊農宅改造,“小酒館”比“紅果樹”更具公共屬性。
臨街的院牆由磚石砌築,與建築牆體的素混凝土形成風格迥異的肌理,建立了最直觀的吸引力。建築所在地除北側外並無相鄰建築體,利用如此優勢,建築師將建築視作“觀看的機器”,在立面最佳觀景位置設定開窗,讓遠近景緻悉數“入畫”。
▼小酒館立面圖
為了滿足商業屬性空間應有的尺度感與使用靈活性, 建築師將坐北朝南的主體建築加高至兩層並做了通高處理,容納室內就餐活動。
“廊下空間”由“紅果樹”延續至此,滿足半室外就餐的需求。
而庭院之中,暖色編織質感的沙發椅圍合出一種歡聚的氛圍,水泥花壇裡野蠻生長的綠植與竹子與石牆面為近景、矮山與藍天為遠景,讓就餐的氛圍更加“原生態”。
建築原有的木屋架被更符合結構、功能的混凝土取而代之,拆除下來的老料被用以修復保留下來的建築部位。
樑柱、檁條、老牆都還原著最初的形態,成為記憶的喚醒——在傳統民居建造智慧與當代文明建築語言的碰撞與對話間,讓來到小酒館的每個人都印象深刻。
除主要功能外,服務於餐飲的配套功能同樣必不可少,與普通餐廳不同,鄉野之味可能需要停留細品。
於是,除了餐飲主體空間外還設有三間小客房和一間主臥室,每一個房間都擁有朝向庭院的開窗,於竹影間起居坐臥。希望城市的居民能夠為一道佳餚、一段風光、一種生活欣然至此,享受喘息休憩後再行出發。
向鄉野去!
“紅果樹”與“小酒館”,兩個二分半小院,兩種經營可能。在吸引外來客、帶動新經濟之餘,這兩座當地文化積釀而成的小院對當地居民而言如同一面照見自我的鏡子,潛移默化地啟迪他們重新認知自己的屬地價值與文化價值,為職業選擇、生活空間營造提供了一種新的選擇。而自然生態的保護、傳統文化與民藝的延續正有賴於這種朝向鄉野的新運動。
▼總平面圖
▼“紅果樹”平面圖
▼“紅果樹”剖面圖
▼“小酒館”平面圖
▼“小酒館”剖面圖
版權宣告:圖文來源於新微設計,版權歸原作者所有,轉載需註明,僅用於學習交流,若有來源標註錯誤或侵權,請留言聯絡小編,將及時更正、刪除。
